Bungalow - à vendre

  • Réf. 6957541
  • Parc du Belvédère 209 - 5561 Houyet
À partir de 148 000 €
PEB : D
  • 64 m²
  • 2

Description

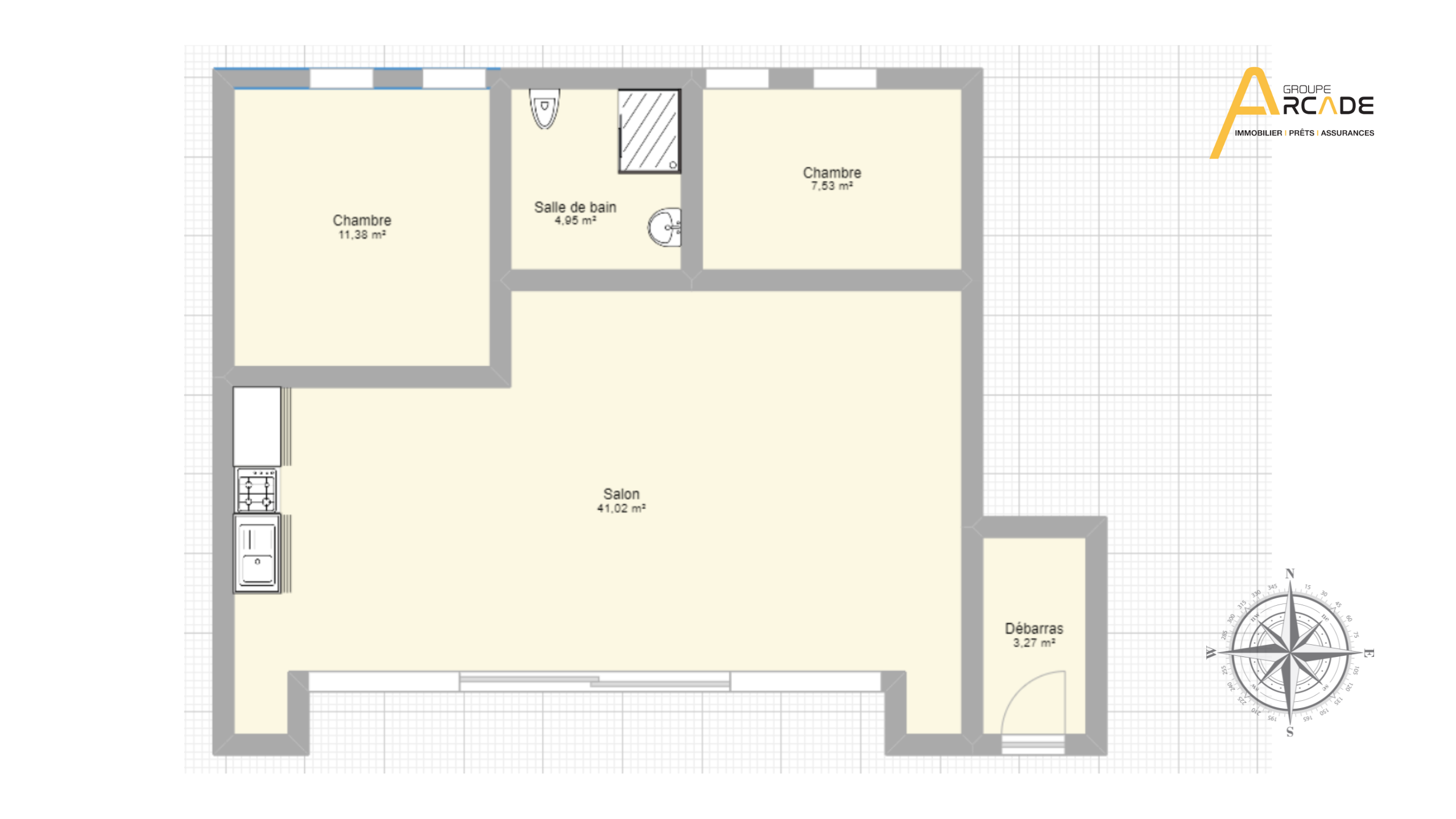
Groupe Arcade propose de faire offre à partir de 148.000€ pour ce bungalow entièrement rénové et isolé situé en pleine nature dans le parc Belvédère tout proche de Celles (un des plus beau village de Wallonie), de la Lesse et du château de Vêves. Il dispose d'une terrasse avec jardin plein sud et de deux emplacements parking. Le bungalow offre une ambiance telle un petit loft. Actuellement loué à raison de 650€/mois. (bail de courte durée ) Composition: séjour donnant sur la cuisine équipée, 1x chambre, 1x chambre ou buanderie et une salle de douche, chaufferie avec remise. Equipements: Chauffage central sur chaudière au mazout, châssis pvc dv récents, électricité agréée. La domiciliation est autorisée. Endroit calme. Frais de copropriété 140€/mois pour le syndic, l'assurance du bâtiment, les communs, les poubelles et provision d'eau. Rc net 302€. (Offre sous réserve d'acceptation par les propriétaires) PEB D, E-SPEC 337 kwh/m²/an; E. total 21568; n° 20200311011584. Les informations fournies par l’agence ont un caractère indicatif et non contractuel. En conséquence, elles ne peuvent engager la responsabilité de l’agence et ne dispensent pas la personne intéressée de réaliser les vérifications. www.groupearcade.be - ESTIMATION GRATUITE DE VOTRE BIEN SANS ENGAGEMENT.

Général

  • Référence 6957541
  • Catégorie Bungalow
  • Meublé Non
  • Nombre de chambres 2
  • Jardin Oui
  • Terrasse Oui
  • Parking Oui
  • Surface habitable 64 m²
  • Disponibilité à l'acte

Bâtiment

  • Année de construction 1976
  • Parking extérieur Oui
  • Année de rénovation 2020
  • Type de toit toit plat

Equipement de base

  • Cuisine Oui
  • Chauffage (ind/coll) (type (ind/coll)) individuel
  • Double vitrage Oui
  • Chauffage (type) mazout (chauf. centr.)
  • Type de cuisine équipée
  • Sdb (type) douche
  • Double vitrage (type) isol. thermique

Divers

  • Buanderie Oui

En chiffres

  • Chambre 1 (surface) 10 m²
  • Chambre 2 (surface) 8 m²

Charges & Rendement

  • Sous régime TVA Non
  • Loué Oui

Raccordements

  • Électricité Oui
  • Télévision par cable Oui
  • Câbles téléphoniques Oui
  • Eau Oui

Équipements techniques

  • Châssis (type) pvc

Spécificités terrain

  • Type d'environnement calme
  • Type d'environnement 2 campagne
  • Exposition de la façade avant sud
  • Risque d'inondation (type innondation) pas situé en zone inondable

À proximité

  • Magasins Oui
  • Ecoles Oui
  • Autoroute Oui

Energie

  • Label PEB (classe) D
  • PEB E-SPEC (kwh/m²/an) 337
  • E total (Kwh/an) 21568
  • PEB code unique 20200311011584
GROUPE ARCADE DINANT
GROUPE ARCADE DINANT
Prendre contact pour le bien : 6957541

Biens similaires

Préférences pour les cookies

La protection de vos données personnelles est importante pour nous. C’est pourquoi nous détaillons ci-dessous les différents services et fonctionnalités du site qui utilisent des cookies et nous vous laissons décider des cookies que vous souhaitez autoriser ou refuser.

Veuillez cependant noter que si vous bloquez certains types de cookies, cela pourrait impacter votre expérience de navigation sur notre site ainsi que les fonctionnalités disponibles.

Nous utilisons des cookies fonctionnels obligatoires pour assurer le bon fonctionnement du site. Ils sont, par exemple, nécessaires pour retrouver le résultat d’une recherche ou enregistrer le choix de la langue.

Certaines fonctionnalités, comme l’affichage de vidéos ou de cartes géographiques, sont assurées via des composants externes développés par des partenaires comme YouTube ou Google. Certains composants utilisent des cookies qui sont susceptibles de permettre à ces tiers de suivre le comportement des internautes afin, par exemple, de réaliser du ciblage publicitaire. L’activation de ces fonctionnalités et des cookies associés est donc soumis à votre consentement.